Te usługi i technologie są niezbędne do działania Herando i umożliwiają m.in. funkcje związane z bezpieczeństwem. Dzięki tym plikom cookie rozpoznajemy również, czy chcesz pozostać zalogowany w profilu, aby przy kolejnej wizycie udostępnić nasze usługi szybciej.
Bez tych plików cookie strona nie może działać prawidłowo. Dlatego ich wyłączenie nie jest możliwe.
| Nazwa pliku cookie | Dostawca / czas | Cel |
|---|---|---|
| herando | Herando / Sesja | Niezbędne do utrzymania zalogowania użytkownika. Umożliwia dostęp do chronionych obszarów bez ponownego logowania. |
| herando-backend | Herando / Sesja | Zapewnia uwierzytelnianie w obszarze backend oraz kontrolę dostępu do chronionych funkcji. |
| frontend | Herando / 2 godziny | Niezbędne do utrzymania sesji we frontendzie i uniknięcia ponownego logowania. |
| frontend_cid | Herando / 2 godziny | Przypisuje bieżącą sesję do identyfikatora zgody we frontendzie. |
| cc | Herando / 1 rok | Zapisuje Twoje ustawienia zgody na pliki cookie. |
| cid | Herando / 1 rok | Zapisuje unikalny identyfikator w celu dokumentacji zgody na pliki cookie. |
| _GRECAPTCHA | Google reCAPTCHA / 6 miesięcy | Chroni stronę przed zautomatyzowanym dostępem, spamem, oszustwami i nadużyciami. |
Podstawa prawna:
Przetwarzanie odbywa się na podstawie art. 6(1)(f) RODO (uzasadniony interes w bezpiecznym i prawidłowym działaniu strony) oraz § 165(3) TKG (AT) / § 25(2) TTDSG (DE).
Aby stale ulepszać nasze usługi, zbieramy zanonimizowane dane do celów statystycznych i analitycznych. Dzięki nim możemy na przykład mierzyć liczbę odwiedzających oraz skuteczność poszczególnych stron naszej witryny i optymalizować treści.
Dostawcy:
Google Ireland Limited, Dublin, Irlandia
Meta Platforms Ireland Ltd., Dublin, Irlandia
Cel:
Analiza zachowań użytkowników, pomiar zasięgu, optymalizacja treści oraz ocena wykorzystania poszczególnych stron.
Przetwarzane dane:
Adres IP (skrócony/zanonimizowany), informacje o urządzeniu i przeglądarce, czas wizyty, odsłony stron, interakcje, adres URL odsyłający.
Podstawa prawna:
Zgoda zgodnie z art. 6 ust. 1 lit. a RODO.
Przekazywanie do państw trzecich:
Możliwe przekazywanie do państw trzecich (np. USA). Dostawcy certyfikowani w ramach EU-US Data Privacy Framework.
Okres przechowywania:
Do 14 miesięcy, o ile nie wskazano inaczej.
| Nazwa pliku cookie | Dostawca / czas | Cel |
|---|---|---|
| _ga | Google Analytics / 2 lata | Identyfikacja unikalnych użytkowników |
| _gid | Google Analytics / 24 godziny | Analiza zachowania użytkowników |
| _gat_* | Google Analytics / 1 minuta | Ograniczenie częstotliwości zapytań |
| _gat_UA-* | Google Analytics / 1 minuta | Sterowanie transmisją danych |
| OTZ | Google Analytics / 1 miesiąc | Zagregowane informacje o ruchu na stronie |
| AEC | Google / 6 miesięcy | Ochrona przed spamem, oszustwami i nadużyciami |
| NID | Google / do 10 lat | Osadzanie treści zewnętrznych (np. YouTube) |
| _fbp | Meta (Facebook) / 6 miesięcy | Analiza wyświetleń strony |
| datr | Meta (Facebook) / 9 miesięcy | Bezpieczeństwo i zapobieganie oszustwom |
| locale | Meta (Facebook) / 1 tydzień | Przechowywanie ustawień języka |
| oo | Meta (Facebook) / 13 miesięcy | Przechowywanie statusu rezygnacji |
| sb | Meta (Facebook) / 11 miesięcy | Identyfikacja przeglądarki |
| m_pixel_ratio | Meta (Facebook) / Sesja | Testy wydajności strony |
Możesz cofnąć swoją zgodę w dowolnym momencie w „ustawieniach plików cookie”.
1.490.000,00 €
Inhaber: Franz Gobec RR Bgm.a.D.
staatl. gepr. und konzess. Immobilientreuhänder, Immobilienmakler, Immobilienverwalter und Bauträger,
Mitglied des Ehrenschiedsgerichtes Tirol
Im Gries 27
A-6370 Kitzbühel
Mobil: +43 676 7047120
Fax: +43 5356 67677
E-Mail: office@kitzimmo.at
IBAN AT152050500000031195
BIC SPKIAT2K
Bezirkshauptmannschaft Kitzbühel
UID: ATU60133411
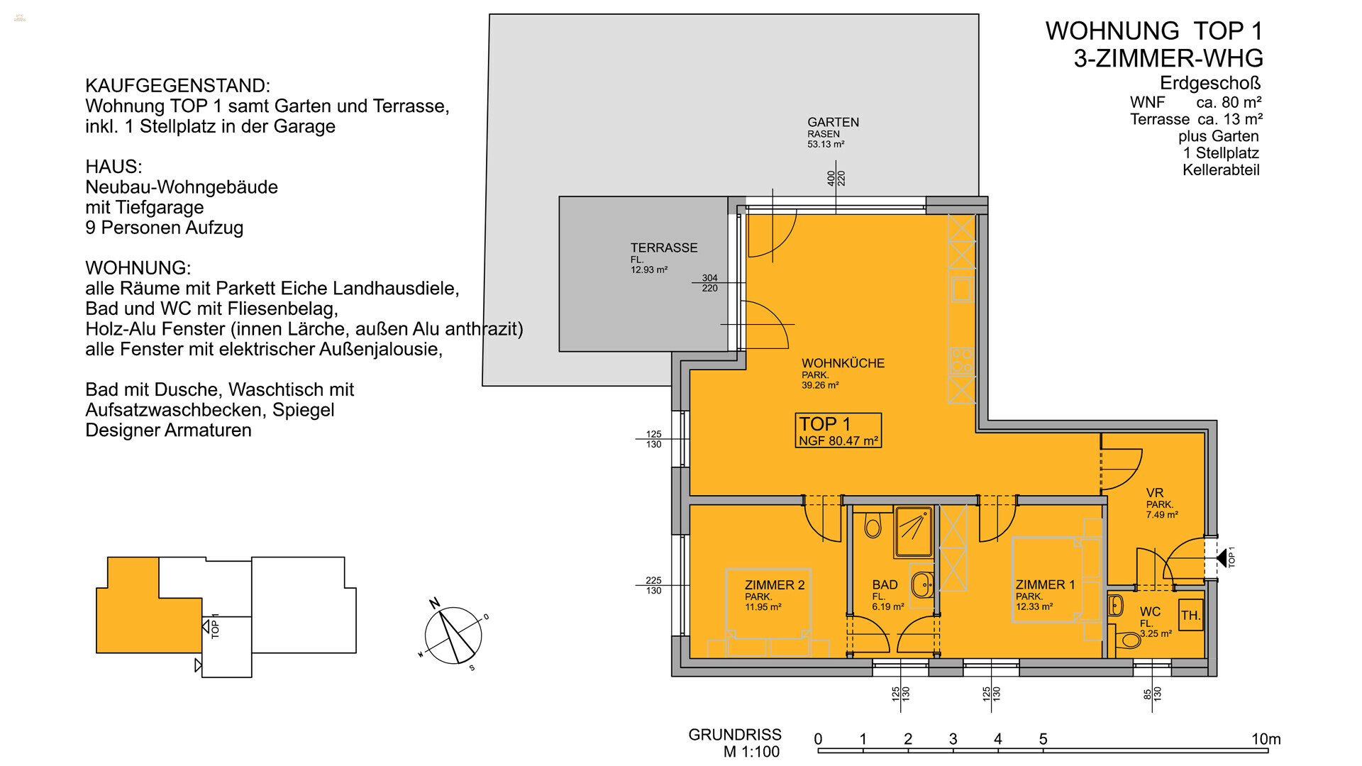
| Typ nieruchomości | Mieszkanie |
| Powierzchnia użytkowa | 80 m² |
| Piętra | 4 |
| Sypialnie | 3 |
| Łazienki | 1 |
| Jakość | Odnowione |
| Kształt nieruchomości | Erstbezug |
| Rok budowy | 2025 |
| Ogrzewanie | Ogrzewanie elektryczne |
| Źródło energii | Geotermalny |
5 ZENTRALE NEUBAUWOHNUNGEN - ZEITLOSES DESIGN IM ZENTRUM VON KITZBÜHEL
DATEN
FAKTEN
Fertigstellung Herbst 2025, Wohnfläche von ca. 52 m² bis 133 m², 1 Schlafzimmer bis 2/3 Schlafzimmer, hochwertige Ausstattung, Raffstore, Erdwärme, Eichenböden, 3-fach-Verglasung, Tiefgarage, zentrale Lage
EINHEITEN
Stellplatz
CHARAKTERISTIK
Dieses exklusive Wohnprojekt im Herzen von Kitzbühel vereint modernes Wohnen mit traditionellem Tiroler Stil – eine perfekte Symbiose aus zeitgemäßer Architektur und alpinem Charme.
In zentraler Lage, mitten im pulsierenden Leben der berühmten Gamsstadt, sind alle wichtigen Einrichtungen wie Restaurants, Geschäfte und Freizeiteinrichtungen bequem fußläufig erreichbar.
Genauso wie die weltberühmte Hahnenkammbahn und die Streif. Hier finden Sie Ihr Zuhause im Herzen von Kitzbühel – perfekt für all jene, die urbanes Leben in einer der begehrtesten Alpendestinationen mit alpinem Flair genießen möchten.
Das Projekt umfasst insgesamt fünf hochwertige Wohneinheiten, die in Größen von 52 m² bis 133 m² variieren.
Vom charmanten Erdgeschoss bis hin zum Obergeschoss ist für jeden Geschmack was dabei. Jede Wohnung besticht durch intelligente Grundrisse, die eine optimale Raumnutzung und maximalen Wohnkomfort gewährleisten.
Große Fensterfronten sorgen für lichtdurchflutete Räume und bieten Ausblicke auf die umliegende Bergwelt. Modernste Haustechnik, darunter eine umweltfreundliche Erdwärmeheizung, sorgt für nachhaltiges und energieeffizientes Wohnen.
Eine hauseigene Tiefgarage bietet bequemen Parkraum, während der Tiroler Baustil mit zeitgemäßen Elementen das Gesamtbild dieses Wohnprojekts abrundet.
3,0 %