399.000,00 €
| Renditeimmobilien | Wohnimmobilien |
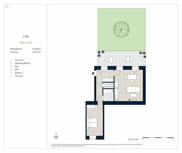
| Wohnfläche | 51,58 m² |
| Schlafzimmer | 2 |
| Bäder | 1 |
| Objektform | Erstbezug |
| Baujahr | 1900 |
| Heizung | Elektroheizung |
| Energiequelle | Gas |
Im Falle der Notwendigkeit einer Fremdfinanzierung Ihrer Wunschimmobilie ermittelt unser Wohnbau-Finanzierungsexperte gerne die optimale Finanzierungslösung und findet das passende Zins- und Konditionsangebot für Sie. Er vergleicht die aktuellen Angebote aller relevanten Banken und Bausparkassen. Der Angebotsvergleich kann aus einem Portfolio von über 120 Banken erfolgen. Das Erstgespräch ist für Sie kostenfrei und unverbindlich, gerne auch bei Ihnen vor Ort. So sparen Sie Ihre wertvolle Zeit und erhalten eine professionelle und unabhängige Finanzierungslösung vom Spezialisten. Sprechen Sie uns wegen eines Termins gerne an!
Zum Verkauf gelang eine wunderschöne 2-Zimmer Wohnung mit Terrasse und Garten im 18. Wiener Gemeindebezirk.
Sie ist ein Erstbezug und befindet sich im EG eines in der Jahrhundertwende erbauten Altbaus. Die Wohnung verfügt über eine Größe von ca. 51 m² und gliedert sich in einen Vorraum, eine Wohnküche, ein Zimmer, ein Bad und ein separates WC. Zusätzlich überzeugt die Wohnung mit einer großzügigen Terrasse. Die Wohnräume sind mit schönem Parkett ausgestattet, die Nassräume sind verfliest. Beheizt wird mittels Fußbodenheizung.
Sie betreten die Wohnung und befinden sich im Vorraum. Gerade durch gelangen Sie in die Wohnküche, von hier gelangen Sie auf die schöne, hofseitige Terrasse. Daneben befindet sich das Schlafzimmer. Sie sind getrennt begehbar. Das Bad ist mit einer Dusche, einem Waschbecken und einem Handtuchtrockner ausgestattet. Das separate WC ist vom Vorraum aus zu erreichen.
Die Fassade des Hauses wurde neu gestaltet und verleiht dem Gebäude einen frischen, zeitgemäßen Look, der perfekt zu seiner klassischen Altbau-Ästhetik passt. Das Stiegenhaus wurde ebenfalls neu verfliest und erstrahlt in frischen Farben, die den Altbaucharme auf moderne Weise unterstreichen. Viele Bereiche des Hauses wurden mit großer Sorgfalt renoviert, um eine gelungene Mischung aus historischem Flair und zeitgemäßem Komfort zu schaffen.
Im Haus werden fünf hochwertige Wohnungen angeboten, von denen drei nach einer umfangreichen Sanierung in Top-Zustand präsentiert werden. Die Wohnflächen variieren zwischen 51 m² und 109 m² und bieten für unterschiedliche Bedürfnisse und Lebensstile das passende Raumangebot.
Für zusätzlichen Komfort können auf Wunsch Stapelparkplätze im Haus erworben werden. Der Preis für den oberen Stapelparker beträgt € 45.000, während der Preis für den unteren Stapelparker bei € 37.500 liegt.
Die Liegenschaft befindet nur wenige Minuten vom Kutschkermarkt und dem Sternwartepark entfernt. In unmittelbarer Gehweite befinden sich diverse Einkaufsmöglichkeiten wie Supermärkte, das Marktgebiet Gersthof/Kutschkermarkt etc. sowie eine optimale öffentliche Verkehrsanbindung durch die Straßenbahnen (9, 40 und 41), der Buslinie (10A) und der S-Bahn (S45) sowie die U-Bahn Linie U6.
Die Vertragserrichtung und Treuhandabwicklung ist gebunden an die Kanzlei Giebl & Zirm Rechtsanwälte, Dr. Karl Lueger-Platz 5, A-1010 Wien . Die Kosten betragen 1,5% + 20% Ust + Barauslagen.
Überzeugen Sie sich selbst von dieser Immobilie.
Gerne lassen wir Ihnen bei ernsthaftem Interesse – vor Kaufanbotlegung – weitere vertrauliche Unterlagen zu dieser Liegenschaft zukommen, welche nicht veröffentlicht werden dürfen.
Für Besichtigungen und nähere Informationen stehen wir Ihnen gerne zur Verfügung!
Frau Marie-Louise Eisenburger
national - Tel: 0676 605 9800
international - Tel.: +43 676 605 9800
e-mail: eisenburger@lifestyle-properties.at
Hinweis gemäß Energieausweisvorlagegesetz: Ein Energieausweis wurde vom Eigentümer bzw. Verkäufer, nach unserer Aufklärung über die generell geltende Vorlagepflicht, sowie Aufforderung zu seiner Erstellung noch nicht vorgelegt. Daher gilt zumindest eine dem Alter und der Art des Gebäudes entsprechende Gesamtenergieeffizienz als vereinbart. Wir übernehmen keinerlei Gewähr oder Haftung für die tatsächliche Energieeffizienz der angebotenen Immobilie.
Wir weisen darauf hin, dass zwischen dem Vermittler und dem zu vermittelnden Dritten ein familiäres oder wirtschaftliches Naheverhältnis besteht.
Der Vermittler ist als Doppelmakler tätig.